Ростех-Сити

Бизнес-центр класса A

О бизнес-центре

Бизнес-центр Ростех-Сити расположен на Волоколамском шоссе в Москве, в районе с развитой городской и деловой инфраструктурой. Комплекс оснащён современными инженерными системами: вентиляцией, кондиционированием, высокоскоростным интернетом и стабильным электроснабжением. Просторные офисные помещения с панорамными окнами создают комфортное рабочее пространство для сотрудников, подходящее для кабинетов, переговорных и open space зон.

 

Комплекс рассчитан на компании различного масштаба — от малых офисов до крупных корпоративных подразделений. Гибкая планировка помещений позволяет объединять офисные блоки или формировать отдельные офисные зоны. Развитая инфраструктура района, включая кафе, рестораны, магазины и сервисные объекты, обеспечивает комфортные условия для работы и приёма клиентов.

 

Где находится бизнес-центр и как до него добраться?

 

БЦ расположен по адресу Москва, Волоколамское шоссе, д. 75, вблизи ключевых транспортных магистралей и станций метро. Удобный доступ на автомобиле и общественном транспорте позволяет сотрудникам и клиентам быстро добираться до комплекса. Пешая доступность до станции метро «Мякинино» и близлежащих остановок общественного транспорта делает объект особенно удобным для делового сообщества Москвы.

 

Преимущества расположения включают:

 

  • Прямой подъезд на автомобиле с Волоколамского шоссе и соседних магистралей.

  • Парковка для сотрудников и посетителей на территории комплекса и рядом с ним.

  • Развитая инфраструктура района: кафе, рестораны, магазины, банки и сервисные объекты.

  • Быстрый доступ к ключевым деловым центрам Москвы и ТТК.

  • Возможность использования общественного транспорта и такси для комфортного перемещения по городу.

 

A класс
263200 общая площадь, кв. м
257 подземная парковка (м/м)

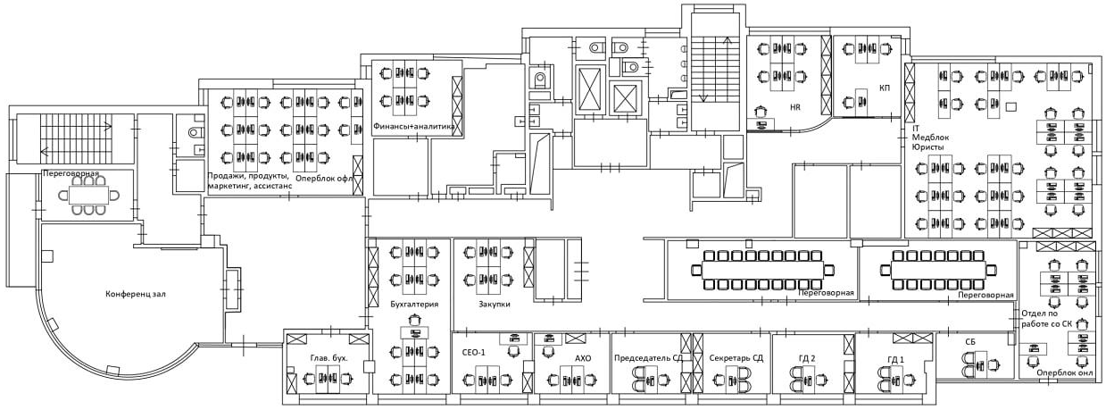
Бесплатная отрисовка планировочных решений с любым количеством правок

Планировка

Преимущества бизнес-центра Ростех-Сити

класс A
Офисы в аренду готовы к въезду
ТРАНСПОРТНАЯ ДОСТУПНОСТЬ
Находится в пешей доступности от станций метро «Тушинская» и «Тушинская»
ПАНОРАМНЫЕ ВИДЫ
С верхних этажей бизнес-центра
ПОДЗЕМНАЯ ПАРКОВКА
257 м/м
СООТНОШЕНИЕ ЦЕНА/КАЧЕСТВО
Одно из лучших предложений в округе
ХОРОШАЯ ЭКОЛОГИЯ
В окрестностях расположено несколько парков

Контакты

Адрес:
г. Москва, Волоколамское шоссе, д 75
Телефон:
+7(499)113-71-32 — отдел аренды
Оставить заявку на просмотр
Отправляя свои данные, я соглашаюсь с Пользовательским соглашением и Политикой конфиденциальности


Какие характеристики и особенности имеет бизнес-центр?

 

Комплекс состоит из нескольких этажей офисных помещений с разнообразной планировкой. Панорамные окна обеспечивают естественное освещение, высокие потолки создают ощущение пространства, а современные инженерные системы поддерживают стабильную работу оборудования и комфортный микроклимат. Функциональная организация помещений позволяет рационально использовать каждый квадратный метр офисного блока и повышать продуктивность сотрудников.

 

Класс бизнес-центра и его соответствие современным стандартам

 

БЦ соответствует стандарту класса B, предоставляя арендаторам современные условия работы. В комплексе обеспечены высокоскоростной интернет и телекоммуникационные сети, современные системы вентиляции и кондиционирования, а также противопожарная сигнализация и система оповещения. Возможность подключения дополнительных инженерных решений позволяет адаптировать офис под задачи арендаторов и создавать оптимальные условия для работы.

 

Что входит в инфраструктуру бизнес-центра

 

Комплекс обеспечивает удобные условия для работы и деловой активности:

  • Кафе и столовые для сотрудников и гостей комплекса.

  • Парковка для автомобилей сотрудников и посетителей.

  • Зоны общего пользования для переговоров и деловых встреч.

  • Развитая инфраструктура района: магазины, банки и сервисные объекты.

  • Удобная транспортная сеть позволяет оперативно добираться до других деловых центров Москвы.

 

Как снять или купить площадь?

 

Бизнес-центр предлагает офисные помещения различной площади — от 200 до 4 000 м². Возможна аренда или покупка офисов напрямую от собственника без комиссии.

 

Процедура аренды и покупки включает:

  • подбор и согласование площади и планировки;

  • заключение договора аренды или купли-продажи;

  • предоставление стандартного пакета документов (паспорт, ИНН, учредительные документы компании);

  • согласование условий оплаты, сроков и эксплуатационных расходов.

 

Безопасность и системы контроля

 

Комплекс оснащён современной системой безопасности: круглосуточная охрана, видеонаблюдение и электронный контроль доступа обеспечивают защиту арендаторов и их имущества. Противопожарные системы включают датчики, сигнализацию и оповещение, поддерживая безопасный режим работы и защищая сотрудников и гостей комплекса.

 

Кто является собственником и основными арендаторами в бизнес-центре

 

Управление комплексом осуществляется собственником напрямую. Арендаторы включают компании из сфер IT, консалтинга, логистики и среднего бизнеса. Комплекс подходит для малых и средних предприятий. Разнообразие офисных блоков по площади и формату делает объект востребованным на рынке коммерческой недвижимости Москвы.

 

Как выглядит бизнес-центр внутри и снаружи

 

Фасад здания выполнен в современном деловом стиле. Вход оборудован представительской зоной. Внутренние помещения просторные и светлые, инженерные системы поддерживают комфортный микроклимат, а из окон открываются виды на Волоколамское шоссе и близлежащие территории.

 

  • Современный фасад и аккуратный внешний вид здания.

  • Просторные офисные помещения с панорамными окнами.

  • Естественное освещение и функциональная планировка.

  • Вид на Волоколамское шоссе и прилегающие территории.

  • Безопасная и комфортная рабочая среда для сотрудников и посетителей.